卧室·怎装 案例 | 140㎡现代简约清新自然又实用
发布日期:2022-11-29 浏览次数:2624
卧室·怎装 案例 | 140㎡现代简约清新自然又实用
设计理念:这是一套现代简约风的装修案例,整体硬装以灰白作为主色调,运用黑色线条作为点缀,简洁而利落的设计让空间更为宽广通透,形塑现代简约风格之韵味。同时从功能出发,讲究生活的舒适、空间结构的明确美观,强调外观的简洁大方。其中白色柜体的运用起到至关重要的作用,是整体现代简约风的主体色彩,也是灵魂所在。
案例简介
面积:140㎡
户型:三居室
风格:现代简约
产品:鞋柜、餐边柜、阳台柜
衣柜、书桌柜、橱柜
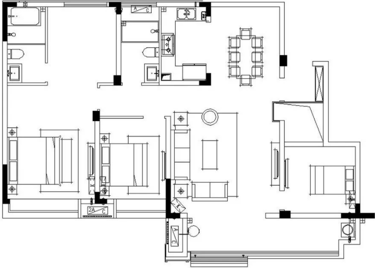
材质:草莓视频污在线多层板、石英石
原布置图
▲ 屋主为追求客餐厅足够宽敞舒适将四居室改为三居室。由于面积足够宽敞,所以每个空间都显得格外宽松、舒适。在现代风简洁的硬装基础上,加入舒适的软装和大气的家具,营造出一个惬意、轻松的居住氛围。
改造后
▲ 契合屋主习惯,打造开放舒适的空间质感,打破空间的阻隔,餐厨一体化设计,同时与客厅关联,增强日常生活互动,扩大了客厅空间,满足二胎家庭在家戏耍空间需求。
客厅
▲ 入口换鞋处采用嵌入式柜体设计,可以悬挂入户换下来的衣物包包且具备换鞋凳功能,玄关白色柜体增加储物空间,鞋柜与展示柜相结合,视觉效果极佳,且与客厅相联通,扩增入户活动区域,消除局促感。
▲ 客厅与阳台联通无阻,全景落地窗让阳光能肆意挥洒进来,保证室内拥有充足采光。储物柜与阳台嵌入式洗衣柜直接延展开来,储物空间MAX。
餐厅
▲ 餐边柜的设计采用的也是嵌入式、展示柜与储物柜相结合的方式,餐边柜的布置上,可以把冷水壶、水杯、小家电茶具等物品放在餐边柜上,保持餐桌台面整洁,提升居家空间的美观与舒适。
主卧
▲ 整面墙的衣柜很气派,靠近窗边的位置镂空出一个梳妆台,不仅光线好,还省地实用,插入柜体式的设计高级感十足,悬挂式圆形梳妆镜,极具调性,很难不爱。
▲ 侧边镂空分隔式设计简直太得女主爱美之心,护肤品及包包放置在这里,随手即拿即用且不会杂乱。
女孩房
▲ 粉色系的爱莎主题公主房,阳光但不娇弱。每个小女孩都有个粉色的公主梦,为缓和全屋粉色的压力,定制白色的柜子缓冲,为培养孩子的自理能力。书柜与书桌相结合的设计,经济又实用。
男孩房


▲ 男孩房采用的是小黄人主题,以白色作为主基调,搭配黄绿色点缀,使空间多了一份俏皮的元素,为孩子的童年留下一段美好的回忆。
厨房
▲ 厨房橱柜及吊柜延用客厅的白色,但是采用的是PET门板,无毒无害,非常环保,甚至可达到食品级,易清洁且可以辅助采光,耐潮湿耐高温,使用年限长。
卧室怎装简介
“卧室·怎装”是草莓在线免费观看地板旗下品牌,以数以万计的中国家庭为研究对象,系统分析、归纳总结出中国家庭生命周期的卧室需求定制模型,从单身贵族→二人世界→童年时光→学业有成→成家立业→儿孙满堂,运用地墙门柜一体化设计,给每一个家庭提供“怎装”方案,满足用户“怎装”都好看的需求。产品涵盖地板、墙板、室内门、衣柜定制、软装家居等家装全品类,开启新一代“怎装”大定制。
卧室·怎装 案例 | 140㎡现代简约清新自然又实用
设计理念:这是一套现代简约风的装修案例,整体硬装以灰白作为主色调,运用黑色线条作为点缀,简洁而利落的设计让空间更为宽广通透,形塑现代简约风格之韵味。同时从功能出发,讲究生活的舒适、空间结构的明确美观,强调外观的简洁大方。其中白色柜体的运用起到至关重要的作用,是整体现代简约风的主体色彩,也是灵魂所在。
案例简介
面积:140㎡
户型:三居室
风格:现代简约
产品:鞋柜、餐边柜、阳台柜
衣柜、书桌柜、橱柜
材质:草莓视频污在线多层板、石英石
原布置图
▲ 屋主为追求客餐厅足够宽敞舒适将四居室改为三居室。由于面积足够宽敞,所以每个空间都显得格外宽松、舒适。在现代风简洁的硬装基础上,加入舒适的软装和大气的家具,营造出一个惬意、轻松的居住氛围。
改造后
▲ 契合屋主习惯,打造开放舒适的空间质感,打破空间的阻隔,餐厨一体化设计,同时与客厅关联,增强日常生活互动,扩大了客厅空间,满足二胎家庭在家戏耍空间需求。
客厅
▲ 入口换鞋处采用嵌入式柜体设计,可以悬挂入户换下来的衣物包包且具备换鞋凳功能,玄关白色柜体增加储物空间,鞋柜与展示柜相结合,视觉效果极佳,且与客厅相联通,扩增入户活动区域,消除局促感。
▲ 客厅与阳台联通无阻,全景落地窗让阳光能肆意挥洒进来,保证室内拥有充足采光。储物柜与阳台嵌入式洗衣柜直接延展开来,储物空间MAX。
餐厅
▲ 餐边柜的设计采用的也是嵌入式、展示柜与储物柜相结合的方式,餐边柜的布置上,可以把冷水壶、水杯、小家电茶具等物品放在餐边柜上,保持餐桌台面整洁,提升居家空间的美观与舒适。
主卧
▲ 整面墙的衣柜很气派,靠近窗边的位置镂空出一个梳妆台,不仅光线好,还省地实用,插入柜体式的设计高级感十足,悬挂式圆形梳妆镜,极具调性,很难不爱。
▲ 侧边镂空分隔式设计简直太得女主爱美之心,护肤品及包包放置在这里,随手即拿即用且不会杂乱。
女孩房
▲ 粉色系的爱莎主题公主房,阳光但不娇弱。每个小女孩都有个粉色的公主梦,为缓和全屋粉色的压力,定制白色的柜子缓冲,为培养孩子的自理能力。书柜与书桌相结合的设计,经济又实用。
男孩房


▲ 男孩房采用的是小黄人主题,以白色作为主基调,搭配黄绿色点缀,使空间多了一份俏皮的元素,为孩子的童年留下一段美好的回忆。
厨房
▲ 厨房橱柜及吊柜延用客厅的白色,但是采用的是PET门板,无毒无害,非常环保,甚至可达到食品级,易清洁且可以辅助采光,耐潮湿耐高温,使用年限长。
卧室怎装简介
“卧室·怎装”是草莓在线免费观看地板旗下品牌,以数以万计的中国家庭为研究对象,系统分析、归纳总结出中国家庭生命周期的卧室需求定制模型,从单身贵族→二人世界→童年时光→学业有成→成家立业→儿孙满堂,运用地墙门柜一体化设计,给每一个家庭提供“怎装”方案,满足用户“怎装”都好看的需求。产品涵盖地板、墙板、室内门、衣柜定制、软装家居等家装全品类,开启新一代“怎装”大定制。
- 上一篇:卧室·怎装 | 简约轻奢风,一种温暖的精致感
- 下一篇:无


